- 东疆开发公司
- 临港产业公司
- 散货物流公司
- 港新公司
东疆开发公司
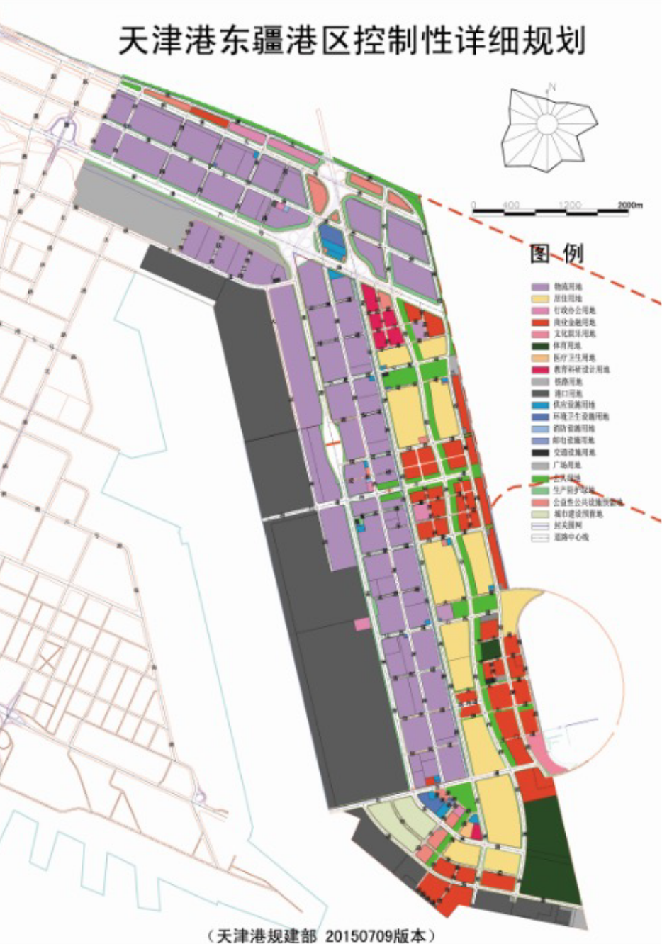
线上赌博平台东疆建设开发有限公司成立于2004年3月,注册地为天津自贸区(东疆保税港区),坐落于东疆保税港区美洲路联检服务中心。公司类型为有限责任公司,注册资本金36.8亿元人民币,由线上赌博平台 (占股90%)和线上赌博平台经济技术合作有限公司(占股10%)出资设立。公司主要从事东疆港区的建设开发、有关基础设施建设及相关服务、楼宇等经营性资产经营与管理。

临港产业公司
天津临港产业投资控股有限公司成立于2007年9月30日,由线上赌博平台 、中交一航局有限公司、天津临港投资控股有限公司、中交天津航道局有限公司合资组建。公司主要负责高沙岭港区的建设开发,经营范围包括基础设施建设、项目开发、市政公共设施管理、城市绿化管理、海水淡化、港口建设工程及相关服务等。

散货物流公司
线上赌博平台散货物流有限责任公司作为散货物流中心开发建设运营主体成立于2001年,由线上赌博平台 等七家大型国有企业共同出资组建。公司依托散货物流中心持续发展,具备建设工程施工、酒店管理服务、工程管理服务、资产租赁、仓储配送服务等业务功能,并通过所属多元化企业向房地产开发经营、绿化养管、物业服务等城市开发与配套服务功能拓展。

港新公司
为贯彻天津市政府'双城双港'战略布局,推进散货物流中心实现整体搬迁,规划建设中部新城,线上赌博平台 公司与散货物流公司于2011年11月共同组建了'线上赌博平台新建设投资有限公司'。作为区域开发企业,公司主要负责散货物流片区10.6平方公里区域的规划建设和土地整理工作,四至范围:北至金岸六道、南至珠江道、西至中央大道、东至海滨大道。


相关链接